Ons kantoor is lid van Baerz & Co luxury homes; een Nederlands platform dat exclusieve woningmakelaars met elkaar verbindt. Voor meer informatie over ons landelijke aanbod en dienstverlening kunt u contact opnemen met ons secretariaat.

HELLOUW
Korfgraaf 24 - 4174 GM
Netherlands

Jeanette van Haaften profile image
Jeanette van Haaften
Real Estate Agent
€995,000 k.k.
Living Area
403m2
Plot Size
4910m2
Bedrooms
5

Description

On the edge of the Betuwe village of Hellouw stands the well-maintained farmhouse ‘De Korfstee’: a charming property with a rich history, a sunny and deep garden offering complete privacy, an outbuilding and a carport.

A spacious hall opens to the bright, garden-facing living room in the former barn, a cosy country kitchen with access to the wine cellar, and a central corridor with an adjacent bedroom with open fireplace, dressing room, the first bathroom, and a study overlooking the garden — all on the ground floor.
On the first floor, above the rear wing, is a generous open space with pantry beneath the insulated roof, while the front wing offers two bedrooms and a second bathroom.

Gross volume: 1,540 m³
Living area: 403 m²
Plot size: 4,910 m²
Year of construction: 1917

Hellouw (approx. 1,050 inhabitants) is a friendly Betuwe village on the River Waal, known for its strong community spirit and vibrant local associations. The surrounding landscape of floodplains, dikes and orchards lends itself to riverside walks, relaxed cycling and a peaceful rural lifestyle.
The village lies centrally between the A2, A15 and A27 motorways. Albert Heijn delivers groceries to your door, and the area offers several farm shops selling cheese, meat, eggs, fruit and flowers. Nearby Haaften, Herwijnen and Zaltbommel provide additional facilities. Gorinchem is a 15-minute drive away, 's-Hertogenbosch twenty minutes, Rotterdam and Utrecht thirty minutes, and Breda and Nijmegen can be reached within forty-five minutes. The wider Betuwe region offers ample recreational opportunities along the Waal and in its nature reserves.

Ground floor layout
The entrance on the driveway side leads into a generous hallway with cloakroom and toilet. A glazed door opens into the former barn, now a spacious living room. The impressive sandstone fireplace with open hearth, the timber trusses and a floor laid with antique red tilestones create a warm and inviting atmosphere. The floor here — as in the hall — benefits from underfloor heating.
French doors open onto the terrace and the garden, which stretches more than 100 metres into the private woodland at the rear.
Adjoining the living room is a sitting room with gas fireplace: a comfortable place to retreat in the evening sun, watch television or listen to music.
The kitchen forms the heart of the home and offers access to the side garden through double doors. Its classic ambiance is enhanced by the four-oven Aga cooker (equipped with a clock thermostat for energy efficiency), the natural stone worktop with porcelain sink, brass tap and Portuguese floor tiles.
The kitchen includes several hand-crafted built-in bookcases, one of which conceals the entrance to the wine cellar.
In the symmetrical front wing, a central corridor provides access to the adjacent rooms. To the east is a spacious bedroom with fitted wardrobes and an elegant open fireplace — formerly the main living room. On the opposite side is a study with views of the front garden. Behind it lies a dressing room with an adjoining bathroom in English style.

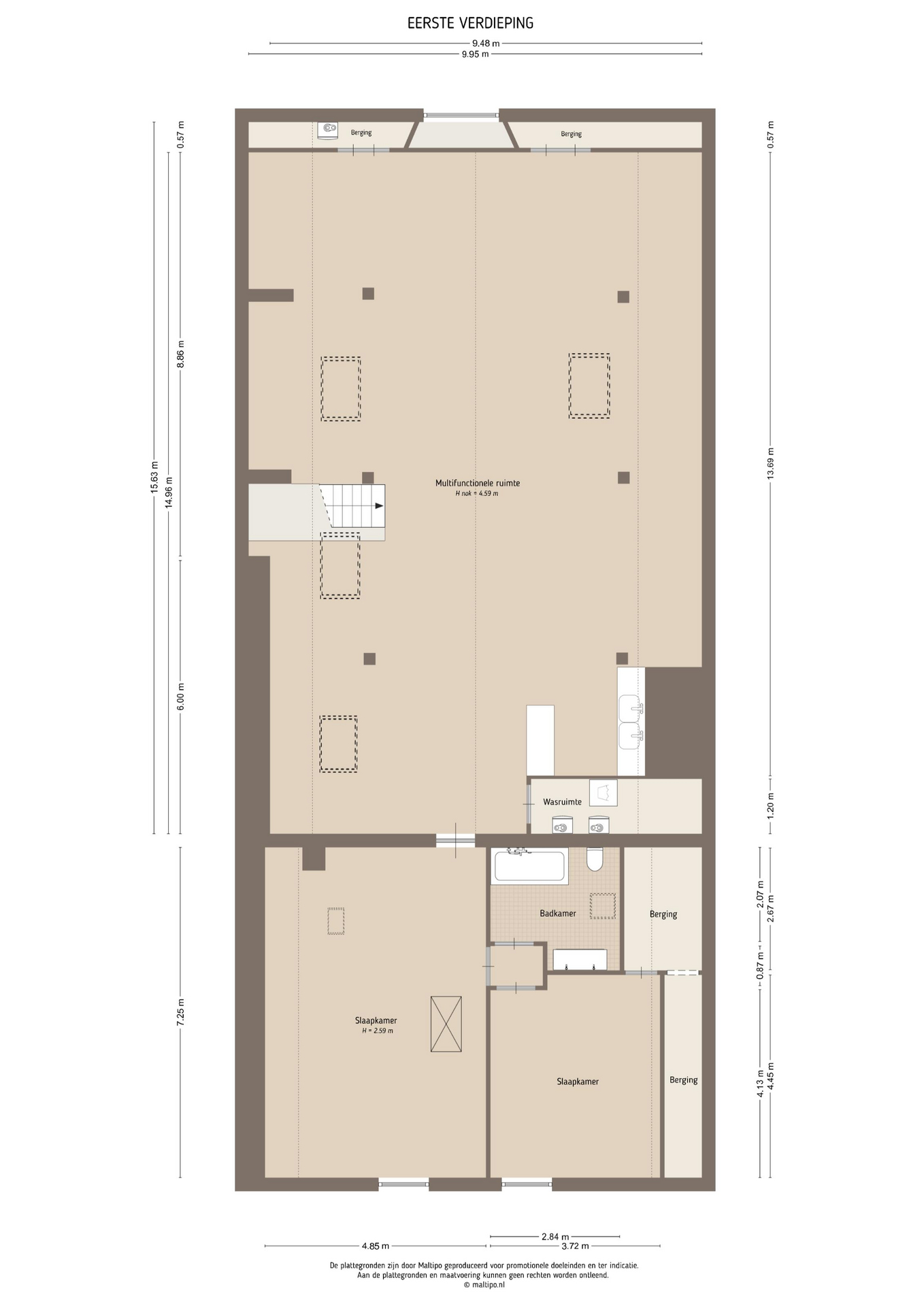
First floor layout
The upper floor above the rear wing surprises with its impressive 4.5-metre ridge height and the open character of the former hayloft. The current owners have used this area as a meeting room, with the pantry proving highly practical. This level can easily be reconfigured to create additional bedrooms and a bathroom; an optional floor plan is available to illustrate the possibilities. Creating a luxurious private suite is also conceivable.
The front wing currently comprises two spacious bedrooms, a second bathroom and a storage room.

Additional features
The nearly 5,000 m² plot — including a low-maintenance flower garden — is a true haven for birds and insects. The grounds are bordered by pollard willows, while an old plum tree and a characteristic weeping willow grace the front garden. To the left of the farmhouse is a driveway for several cars, with space for two vehicles beneath the carport.
The front wing has its own entrance via the original front door, which the current residents do not use but which makes dual occupancy or a home practice perfectly feasible.
At the back of the garden stands an insulated outbuilding with wood-burning stove and kitchenette. The owners have used this space for selling brocante items. The outbuilding features French doors opening onto a 10 m² covered terrace — ideal for guests, teenagers, an atelier or a quiet workspace.
Behind the outbuilding lies a flower meadow and orchard with pear, apple, plum, medlar and quince trees.
The outbuilding may be significantly enlarged with the appropriate permit. Beyond it, the south-facing plot extends into the private woodland. At its entrance are an animal shelter with outdoor run, a large decked terrace and a wildlife pond. Altogether, it forms a lush, park-like enclave inhabited by many bird species and other wildlife. Hedgehogs, blackbirds, thrushes, finches, robins, nuthatches, woodpeckers, hares and pheasants are frequent visitors. Nesting boxes for birds, butterflies and bats are dotted throughout the area and are used abundantly each year.

Within walking distance lies De Crobsche Waard, a 77-hectare nature reserve created after clay extraction for the local brick industry. It has since developed into a unique landscape. The former swimming pit and ice rink recall earlier times; the rink is still maintained by the local ice club, De IJsvogels, named after the kingfisher that inhabits the area alongside cormorants, herons, spoonbills and storks.
Several walking trails cross the reserve — including a scenic 6-kilometre loop, perfect for a stroll with or without your dog.

If you are looking for a charming farmhouse where living and working come together in a rural yet centrally located setting, we warmly invite you to schedule a viewing.

Features

Air conditioning
Transfer of ownership
Asking Price
€ 995.000 k.k.
Status
beschikbaar
Acceptance
in overleg
Construction
Kind of house
Woonboerderij
Building type
vrijstaande woning
Energy rating
C
Roof type
zadeldak
Bedrooms
5
Bathrooms
2
Surface Areas And Volume
Living Area
403 m2
Other indoor space
21 m2
Exterior space attached to the buildinge
4 m2
External storage space
84 m2
Volume in cubic meters
1543 m3
Plot Size
4910 m2
Facilities
Mechanische ventilatie
Airconditioning
Rookkanaal
Dakraam
Aan rustige weg
Beschutte ligging
Landelijk gelegen
Baerz & Co Property Brochure

Brochure

Videos

360 Panoramas

360°
360 Panorama - Korfgraaf 24
360°
360 Panorama - Korfgraaf 24
360°
360 Panorama - Korfgraaf 24
360°
360 Panorama - Korfgraaf 24
360°
360 Panorama - Korfgraaf 24
360°
360 Panorama - Korfgraaf 24
360°
360 Panorama - Korfgraaf 24
360°
360 Panorama - Korfgraaf 24

Bijzonder Wonen Makelaardij

Heilige Geeststraat, 11
5301CP Zaltbommel

info@bijzonderwonen.com
+31 41 868 00 50

www.bijzonderwonen.com

Information / Viewing request

Jeanette van Haaften profile image
Jeanette van Haaften
Real Estate Agent