Ons kantoor is lid van Baerz & Co luxury homes; een Nederlands platform dat exclusieve woningmakelaars met elkaar verbindt. Voor meer informatie over ons landelijke aanbod en dienstverlening kunt u contact opnemen met ons secretariaat.

DORDRECHT
Laan Van Braets 94 - 3328 LK
Netherlands

Johan Oosterlee profile image
Johan Oosterlee
Director/owner
€945,000 k.k.
Living Area
158m2
Plot Size
460m2
Bedrooms
4

Description

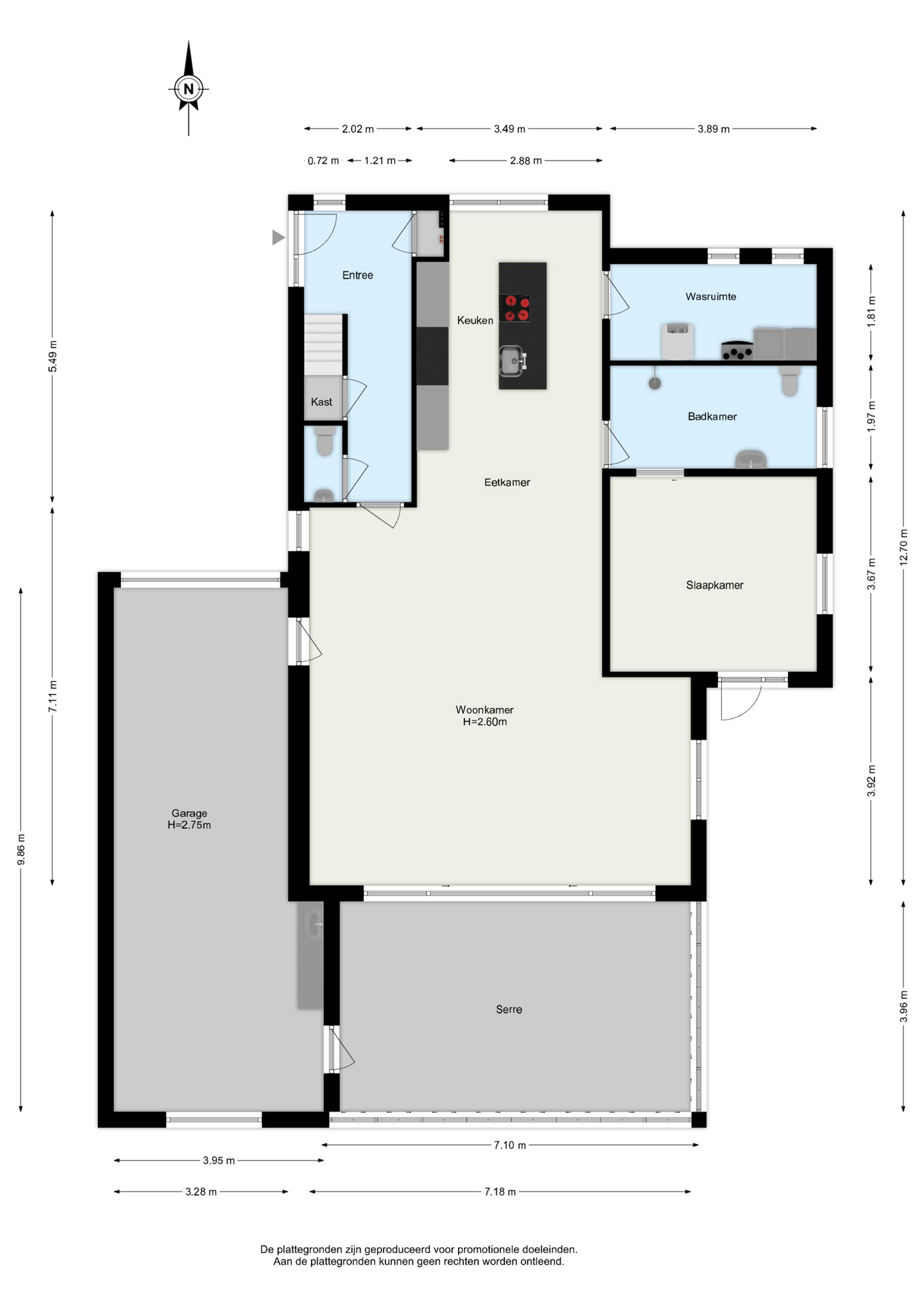
This detached villa Dordrecht commands a prime position in the sought-after Wilgenwende district, where landscaped calm meets sustainability. The house rests on a generous 460 m² plot and provides 158 m² of living space, framed by light-filled interiors and refined finishes. Designed in 2020 with a focus on energy efficiency, the villa features triple-glazed windows, underfloor heating, a ground-source heat pump, and twenty-six solar panels, achieving the highest A++++ energy label.

The ground floor is anchored by a spacious living room of 45 m², its large windows welcoming natural light and garden views. The open kitchen is fitted with high-end appliances and a central island, while adjacent spaces include a utility room and a guest bedroom with direct garden access. A Carrara Italian marble-gravel floor adds subtle texture to the main living area, seamlessly leading out to a fully enclosed conservatory—a year-round connection to the outdoors.

Upstairs, three capacious bedrooms and a second bathroom balance privacy with family functionality. Every detail supports residential ease, from insect-screened windows and integrated sunscreens to the garage with a high clearance, ideal for versatile storage or a home office. The rear south-facing garden spans approximately 145 m², landscaped for seclusion and outdoor living, with terraces, rainwater collection, and a pavilion inviting quiet retreat.

Set at the end of a peaceful cul-de-sac, this property combines sophisticated insulation and technology with the rhythm of local suburban life, just ten minutes from city amenities. The villa’s design, connection to the landscape, and commitment to sustainability position it as an exemplary choice for privacy-oriented living in Dordrecht. For those seeking a luxury villa for sale in Dordrecht, this home balances contemporary engineering with enduring comfort.

Explore Dordrecht with Baerz, Your Trusted Personal Property Finder & Advisor

The Dordrecht real estate landscape is defined by unique heritage assets and tightly held premium inventory. An established local advisory partner brings critical value—granting access to off-market homes, ensuring seamless negotiation, and navigating restoration or legal complexities. Experienced consultants safeguard your interests at every stage, allowing for an efficient, discreet acquisition journey.

Special Features

Solar panels

Features

Transfer of ownership
Asking Price
€ 945.000 k.k.
Status
beschikbaar
Acceptance
in overleg
Construction
Kind of house
Villa
Building type
vrijstaande woning
Construction period
2020
Energy rating
A_PPPP
Roof type
plat dak
Bedrooms
4
Bathrooms
2
Surface Areas And Volume
Living Area
158 m2
Other indoor space
35 m2
Exterior space attached to the buildinge
28 m2
Volume in cubic meters
596 m3
Plot Size
460 m2
Facilities
Mechanische ventilatie
Buitenzonwering
Schuifpui
Glasvezel kabel
Zonnepanelen
In woonwijk
Baerz & Co Property Brochure

Brochure

Videos

Floor Plans

OZP Makelaars

Vissersdijk Beneden 25
3319 GW Dordrecht

oosterlee@ozp-makelaars.nl
+31 786351753

www.ozp-makelaars.nl

Information / Viewing request

Johan Oosterlee profile image
Johan Oosterlee
Director/owner