Ons kantoor is lid van Baerz & Co luxury homes; een Nederlands platform dat exclusieve woningmakelaars met elkaar verbindt. Voor meer informatie over ons landelijke aanbod en dienstverlening kunt u contact opnemen met ons secretariaat.

DELFT
Venlokas 9 - 2614 SN
Netherlands

Jan Paul van Daal profile image
Jan Paul van Daal
Real estate agent
€995,000 k.k.
Living Area
176m2
Plot Size
254m2
Bedrooms
6

Description

This spacious semi-detached house is located on a child-friendly and popular street and offers a living area of no less than 175 m², a beautiful sunny south-facing garden and a driveway on private property.

The location is particularly popular: a pleasant street with front gardens where neighbours meet and children can play safely in the middle of the courtyard.

In addition, you live here just an 8-minute bike ride from the city centre of Delft and the station. Primary schools, secondary schools and childcare facilities are located in the immediate vicinity, and the major roads are also easily accessible.

The property is modern and sustainable. For example, the roof is equipped with solar panels and the property is connected to Delft's district heating system – completely gas-free and ready for the future.

A unique property website is available for this property. Download the brochure on Funda for the link to the website with all the information and additional photos.

The layout is as follows:

Ground floor

Spacious, well-maintained front garden with parking, greenery and a cosy terrace.
Entrance to the house with hall, meter cupboard, a practical walk-in cupboard and a luxurious toilet with wall-mounted toilet and washbasin.
A stylish glass industrial door leads to the bright living room. At the front is the spacious open kitchen with a cooking island and various built-in appliances. The sliding doors give you direct access to the terrace in the front garden – a lovely place for a cup of coffee or a drink in the sun.
At the rear is the living area with a view of the beautifully landscaped garden. The living room is wide and offers enough space for a spacious sitting area. The sunny south-facing back garden has a large terrace, a greenhouse, a wooden shed and a jetty on the water. In summer, you can step right from your own garden onto your SUP board! The garden is also accessible via a back entrance along the house.

First floor

A spacious and light staircase leads to the first floor. The spacious landing stands out with its extra-high doors and provides access to no fewer than four bedrooms.
There are two spacious rooms at the rear, while two more bedrooms are located at the front. In the middle is the luxurious bathroom with a walk-in shower, bathtub, double sink and designer radiator. There is also a separate second toilet on this floor.

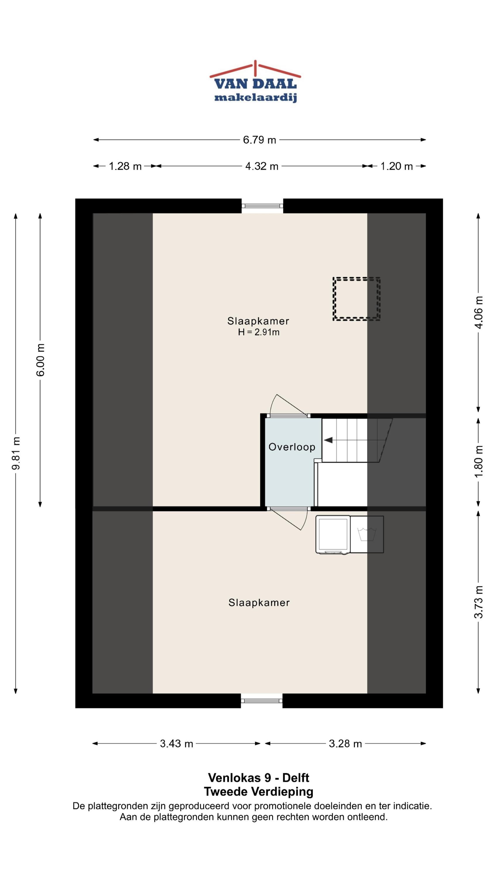
Second floor

The second floor is surprisingly spacious and offers plenty of possibilities.
Here you will find a small landing, a large fifth bedroom at the rear and a sixth room at the front. The latter room currently serves as a laundry and storage room, with connections for a washing machine and dryer.

The floor is also prepared for the installation of a second bathroom – all connections are already in place, making this easy to achieve.

Special features/characteristics:
- Very comfortable family home;
- Ideal for a large family needing 5 to 6 bedrooms;
- Located in a child-friendly courtyard with a playground and green space in the middle;
- Heating and hot water via district heating;
- Equipped with plastic window frames with HR++ glazing;
- Energy label A and equipped with 4 solar panels;
- Located on 254 m² of private land;
- Built in 2019;
- Living area approximately 175 m².

Delivery in consultation

Interested in this property? Engage your NVM purchase agent. Your NVM purchase agent will represent your interests and save you time, money and worry. Addresses of NVM purchase agents can be found on Funda.

Features

Solar panels
Transfer of ownership
Asking Price
€ 995.000 k.k.
Status
verkocht onder voorbehoud
Acceptance
in overleg
Construction
Kind of house
Eengezinswoning
Building type
twee onder een kapwoning
Construction period
2019
Energy rating
A
Roof type
zadeldak
Bedrooms
6
Bathrooms
1
Surface Areas And Volume
Living Area
176 m2
Other indoor space
0 m2
External storage space
6 m2
Volume in cubic meters
630 m3
Plot Size
254 m2
Facilities
Zonnepanelen
Balansventilatie
Aan water
Aan rustige weg
In woonwijk
Baerz & Co Property Brochure

Brochure

Videos

Van Daal Makelaardij

Voldersgracht 33
2611 ED Delft

janpaul@vandaalmakelaardij.nl
+31 (0)15 - 212 73 00

www.vandaalmakelaardij.nl

Information / Viewing request

Jan Paul van Daal profile image
Jan Paul van Daal
Real estate agent

Buying a Luxury Property in Delft

Delft is renowned for its artistic legacy, refined lifestyle, and world-class urbanism. The community draws sophisticated residents and investors, offering bespoke residences, access to elite services, and thriving international connections.