Welkom bij Makelaardij Van Brussel Internationaal. Ook ver buiten Nederland zijn wij zeer actief. Via ons internationale netwerk binnen Baerz & Co begeleiden onze Nederlandse (!) partners u vakkundig bij de aankoop van exclusieve tweede huizen. U vindt ons in 20 landen rond de Middellandse zee, de Alpen en Dubai. Neem voor meer informatie contact op met ons secretariaat.

BARCELONA
Spain

Johan van Brussel profile image
Johan van Brussel
Real Estate Agent
€1,750,000
Living Area
184m2
Plot Size
N/A
Bedrooms
3

Description

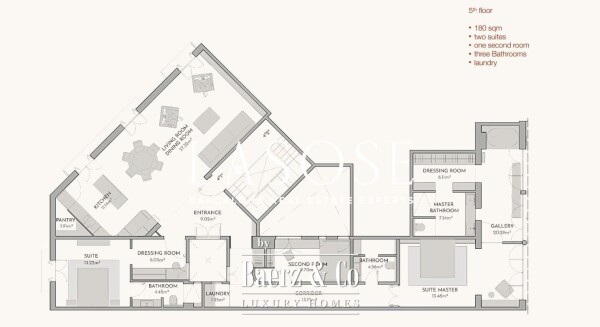
Flat Barcelona sets a calm benchmark for contemporary living in the heart of the city, occupying 184 m² on the fifth floor of a property fully refurbished in 2021. This distinguished flat presents three bedrooms and three bathrooms, curated with natural wood parquet flooring and high-performance double glazing that preserves quiet and comfort. Ducted air conditioning and heat pump heating maintain tailored climate control year-round.

The orientation infuses every space with persistent daylight, while unobstructed urban views expand across the Barcelona skyline. A private balcony further connects the living area to the city’s sensory rhythms. Communal amenities elevate daily life, including a recently renewed rooftop terrace offering panoramic sights from the sea to Tibidabo, a fully equipped gymnasium, and the reassurance of a concierge service and lift.

One block from the transformed Consell de Cent and a short stroll to Paseo de Sant Joan, the location allows effortless connection to exclusive shops, tranquil green areas, and the pulse of central Barcelona. This flat embodies an understated blend of luxury and authenticity for those who prize both privacy and place.

Explore Barcelona with Baerz, Your Trusted Personal Property Finder & Advisor

Engaging an expert advisor in Barcelona’s prime property segment is invaluable. Efficiently navigating local market nuances, gaining access to confidential or off-market listings, and benefiting from skilled negotiation are paramount. Bespoke advisory services offer discretion, deep-rooted connections, and risk mitigation at every stage of the acquisition or divestment journey, ensuring buyers and sellers achieve results aligned with their objectives.

Avoid common pitfalls

International buyers often waste valuable time on duplicate, outdated or misleading online listings, especially since nearly 30% of luxury homes never appear on the public market. Seller’s agents represent the seller’s interests, not the buyer’s. Even requesting information about a property can result in a seller’s agent registering you as their “client” without your consent.
With Baerz Property Finders & Advisors, you avoid all these pitfalls entirely. We work solely on your behalf, offering independent representation, clear guidance and access to all available properties, including off-market opportunities that others never get to see.

Interested in a Personal Property Advisor?

We show you all available homes in one place. Feel free to contact us to learn how we can meet your needs and protect your interests exclusively.

Features

Swimming pool
Air conditioning
Transfer of ownership
Asking Price
€ 1.750.000
LAS
Construction
Rooms
N/A
Bedrooms
3
Bathrooms
3
Surface Areas And Volume
Living Area
184 m2
Plot Size
0 m2
Facilities
Balcon
A/A
Elevator
Wardrobes cupboard
Appliances
Heating
Air-Conditioning
Video Intercom
Community Pool
Light
Gymnasium
Washing room
Baerz & Co Property Brochure

Brochure

Videos

Information / Viewing request

Johan van Brussel profile image
Johan van Brussel
Real Estate Agent

Buying a Luxury Property in Barcelona

Barcelona’s luxury real estate scene welcomes international residents seeking refined living, vibrant culture, and secure investment opportunities. A blend of heritage, community, and world-class services awaits in this Mediterranean hub.