Baerz & Co is een landelijk samenwerkingsverband van zorgvuldig geselecteerde boutique luxury makelaars. Samen vormen wij één netwerk, met één gedeeld aanbod. De woningen die u op onze website ziet, zijn afkomstig van alle aangesloten kantoren binnen Baerz & Co. Daardoor is niet ieder object rechtstreeks door ons kantoor in verkoop, maar door een gespecialiseerde collega binnen ons netwerk. Heeft u een woning gevonden die u aanspreekt en wilt u meer informatie? Dan brengen wij u graag persoonlijk in contact met de betreffende verkoopmakelaar, zodat u direct en zorgvuldig wordt begeleid.

AMSTERDAM
Solitudolaan 408 - 1096 DS
Netherlands

Johan van Brussel profile image
Johan van Brussel
Real Estate Agent
€2,350,000 k.k.
Living Area
332m2
Plot Size
258m2
Bedrooms
7

Description

Solitudolaan 408, 1096 DS AMSTERDAM

Fantastic family home, entire property (approx. 332 m²) located in the modern and water-rich Overamstel area in Amsterdam East. The house features a spacious kitchen-diner with a cooking island, a charming living room with a bay window, no fewer than seven well-proportioned bedrooms, and multiple bathrooms. In addition, the property offers a deep, sunny backyard, private on-site parking, and several roof terraces. Various energy-efficient measures, including 32 solar panels, make this a highly sustainable home!

Accessibility & Location:
The property at Solitudolaan 408 is situated in a beautiful and quiet location in the modern and sought-after Omval/Overamstel area of Amsterdam East. This contemporary urban district is known for its modern architecture, green public spaces, and its waterfront setting along the Amstel River and Weespertrekvaart canal. The neighborhood offers a pleasant balance between vibrant city life and relaxed living by the water. Within walking distance, you’ll find various restaurants, sports facilities, parks, and marinas. Several supermarkets and shops are also nearby for daily essentials. The presence of daycare centers and primary schools makes this an attractive location for both young families and professionals.

The property is exceptionally well connected: Amsterdam Amstel Station is just a short distance away and offers train, metro, and bus connections to the rest of the city and region. The A10 ring road and the A1 and A2 motorways are only minutes away, providing easy access to Schiphol Airport and cities such as Utrecht and Haarlem.

Layout:

Ground Floor:
The entrance to the home is located on the street side. The spacious hallway includes the meter cupboard and a separate toilet with a washbasin. From here, there is direct access to the large internal garage of approximately 34 m², which also provides access to the deep rear garden of about 193 m². The garden can be reached via a covered terrace of approximately 15 m² – a perfect spot to enjoy long summer evenings.

First Floor:
The first floor serves as the main living level. At the front, you’ll find a charming living room featuring a characteristic bay window, allowing for pleasant natural light. At the rear is a spacious kitchen-diner, fitted with a modern cooking island and fully equipped with high-end built-in appliances, including an induction cooktop with integrated extractor, oven, elevated dishwasher, Quooker, fridge-freezer combination, double sink, and ample counter space. The kitchen also offers extensive storage options. Sliding doors open onto the southwest-facing terrace. An internal storage room is also located on this floor.

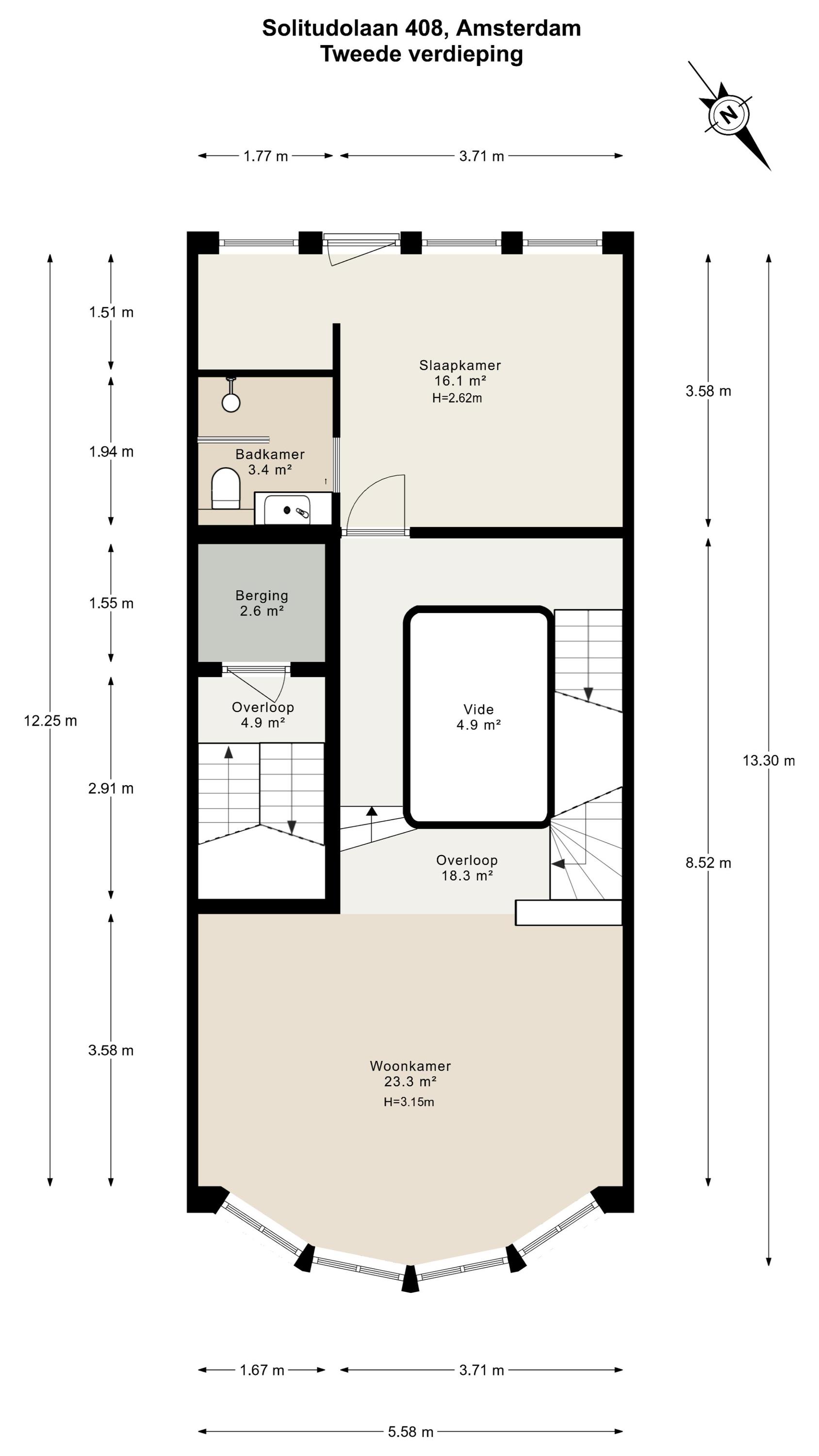
Second Floor:
The second floor features a second comfortable lounge/sitting room at the front, with impressive floor-to-ceiling windows, and a generously sized bedroom at the rear. Adjoining this bedroom is an en-suite bathroom with a shower, washbasin, and toilet. The central atrium brings daylight deep into the heart of the house, creating a sense of openness and space. There is also an internal storage room.

Third Floor:
This level houses three full-sized bedrooms and a spacious bathroom with a bathtub, walk-in shower, toilet, and a vanity unit with sink. Two bedrooms are situated at the front, and the third is located at the rear. The hallway is generously proportioned and includes an additional storage room and a built-in wardrobe.

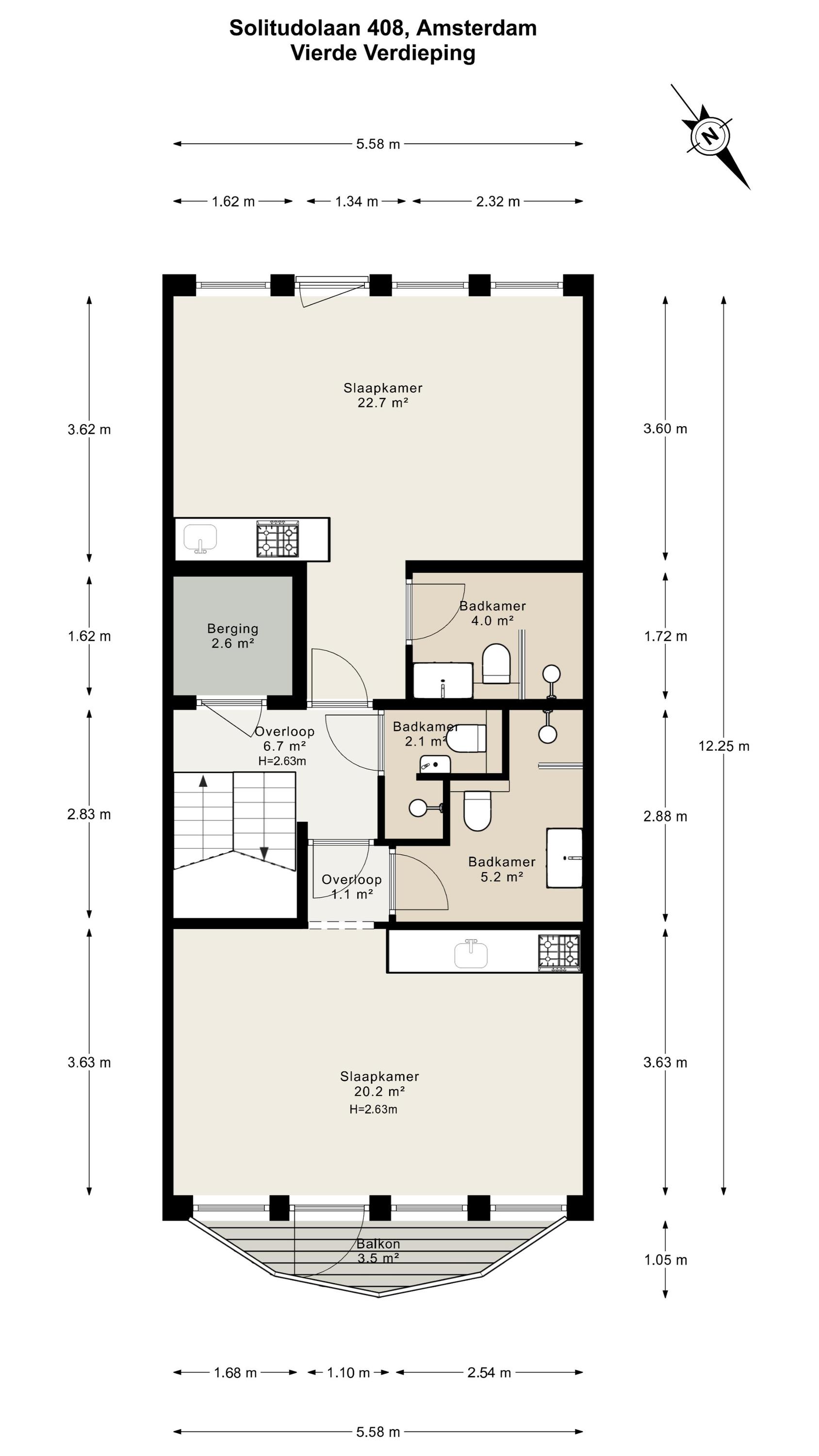
Fourth Floor:
The fourth floor features two self-contained studio units, each with its own bathroom and large windows that bring in abundant natural light. In total, there are three bathrooms on this floor, all equipped with walk-in showers and toilets. At the front, there is access to a balcony.

Fifth Floor:
The top floor is configured as a multifunctional space, comprising an office and an adjoining bedroom with a pantry. This floor also includes a storage area and access to two spacious roof terraces – one at the front and one at the rear. This level is ideal for use as a guest suite, studio, or home office.

An elevator shaft is already in place, making it possible to install a lift.

In short: a fantastic and sustainable home in a prime location!

Key Features:
- Exceptional family home with office space, approx. 332.1 m² (measured in accordance with NEN 2580 guidelines)
- 7 well-proportioned bedrooms
- 2 studio units
- Spacious and sunny southwest-facing rear garden of approx. 276.3 m²
- 2 balconies and 2 rooftop terraces
- Flooring: natural rubber by Noraplan with underfloor heating
- Energy label A++++
- Roof equipped with 32 solar panels
- Ground source heat pump, 2 heat recovery ventilation systems, and passive cooling (5°C below outdoor temperature)
- Elevator shaft present; lift installation possible
- Property subject to perpetual ground lease: €26,952.29 per year
- Zoning permits both residential and office use
- Home office up to 100 m² GFA allowed
- Indoor parking on the ground floor
- Transfer in consultation
This information has been compiled by us with the utmost care. However, we accept no liability for any incompleteness, inaccuracies, or other errors, nor for the consequences thereof. All stated measurements and surface areas are indicative. Buyers are responsible for conducting their own due diligence on all matters that are important to them. With regard to this property, the real estate agent acts as an advisor to the seller. We strongly recommend engaging a qualified (NVM) real estate agent to guide you through the purchasing process. If you have specific requirements regarding the property, we advise you to communicate these in a timely manner to your purchasing agent and to independently investigate them or have them investigated. If you choose not to engage a professional representative, you are deemed by law to have sufficient expertise to assess all relevant matters yourself. The NVM terms and conditions apply.

Features

Solar panels
Transfer of ownership
Asking Price
€ 2.350.000 k.k.
Status
beschikbaar
Acceptance
in overleg
Construction
Kind of house
Eengezinswoning
Building type
tussenwoning
Construction period
2020
Energy rating
A++++
Roof type
plat dak
Bedrooms
7
Bathrooms
5
Surface Areas And Volume
Living Area
332 m2
Other indoor space
38 m2
Exterior space attached to the buildinge
53 m2
Volume in cubic meters
1251 m3
Plot Size
258 m2
Facilities
Mechanische ventilatie
Tv kabel
Zonnepanelen
In centrum
In woonwijk
Vrij uitzicht
Baerz & Co Property Brochure

Brochure

Videos

Makelaardij Van Brussel

Europalaan 159
2408 BK Alphen a/d Rijn

johan@makelaardijvanbrussel.nl
+31 172424724

www.makelaardijvanbrussel.nl

Information / Viewing request

Johan van Brussel profile image
Johan van Brussel
Real Estate Agent

Buying a Luxury Property in Amsterdam

Amsterdam offers a cosmopolitan lifestyle defined by heritage, connectivity, and discreet luxury. Residents benefit from a robust international community, curated services, and vibrant culture. The city’s enduring appeal lies in its blend of history, sophistication, and progressive spirit.