Baerz & Co is een landelijk samenwerkingsverband van zorgvuldig geselecteerde boutique luxury makelaars. Samen vormen wij één netwerk, met één gedeeld aanbod. De woningen die u op onze website ziet, zijn afkomstig van alle aangesloten kantoren binnen Baerz & Co. Daardoor is niet ieder object rechtstreeks door ons kantoor in verkoop, maar door een gespecialiseerde collega binnen ons netwerk. Heeft u een woning gevonden die u aanspreekt en wilt u meer informatie? Dan brengen wij u graag persoonlijk in contact met de betreffende verkoopmakelaar, zodat u direct en zorgvuldig wordt begeleid.

AMSTERDAM
Prof. Tulpstraat 42 - 1018 HA
Netherlands

€995,000
Living Area
101m2
Plot Size
N/A
Bedrooms
2

Description

Prof. Tulpstraat 42, 1018 HA Amsterdam

A hidden gem in the heart of Amsterdam — available for the first time in over 20 years

Tucked away directly behind the Amstel Hotel, along the water of the Singelgracht, this exceptional ground-floor apartment with basement offers a rare opportunity in one of Amsterdam’s most characterful locations.

After more than twenty years, this hidden gem returns to the market. The property combines tranquillity, privacy and space with an exceptional sense of light, thanks to no fewer than 16 windows spread across both levels. Its corner position and generous windows on the ground floor allow daylight to pour in beautifully, creating a bright and inviting atmosphere throughout the day.

The property is further distinguished by its private entrance, high ceilings and unobstructed views over the Singelgracht. The high-quality finishes, including a stunning castle oak floor laid throughout the entire home, add warmth and character. The basement level is remarkably light due to its large windows and offers a level of comfort rarely found in lower-ground spaces.

With a total living area of approximately 101 m², divided over two full floors, the apartment offers a well-balanced layout, including a living room, kitchen and dining area on the ground floor, and two bedrooms plus a versatile additional room in the basement.

The apartment forms part of a small-scale and high-quality building, fully redeveloped in 2006 by Stadsherstel Amsterdam, comprising only seven luxury apartments.

The location is truly exceptional: peaceful living on a charming street in the city centre, within walking distance of the Utrechtsestraat and the Plantage district.

Layout
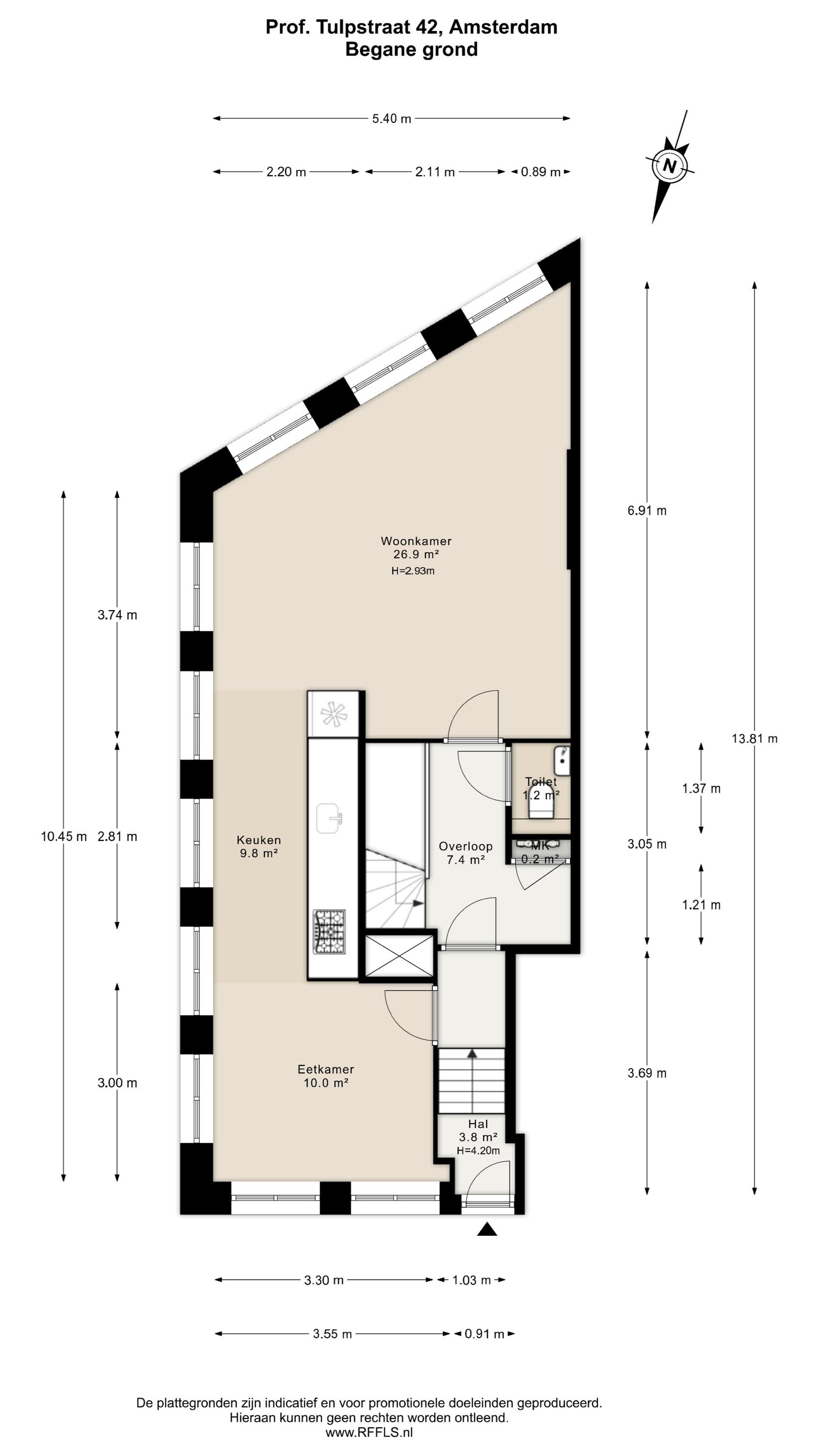
Ground floor
Upon entering, a few steps lead to the main living area. From here, the dining area is directly accessible, while the central hallway — with meter cupboard and staircase to the basement — leads through to the living room.

The living and dining areas flow seamlessly into one another, with the kitchen forming the central connection. The kitchen is functionally designed and equipped with a fridge-freezer, oven, gas stove, dishwasher and extractor hood. Additional storage has been cleverly created above the kitchen.

Large windows on multiple sides define this floor, providing an abundance of natural light and open views over the Singelgracht. The corner position enhances the spacious and airy feel. At the front of the property, there is space for a seating area — a perfect spot to enjoy the surroundings.

Basement
The basement is accessed via the staircase in the hallway and offers three well-proportioned rooms, including two full-sized bedrooms.

The centrally located bathroom is fitted with a shower, toilet and washbasin. In addition, there is a separate utility room with space for a washing machine and dryer. From here, there is access to the communal area with the storage units of the other apartments.

Location and accessibility

Prof. Tulpstraat is a quiet and charming street in Amsterdam-Centre, located directly behind the iconic Amstel Hotel. The street offers a peaceful setting with minimal traffic, while the vibrant city centre is just moments away. The property enjoys a unique position with unobstructed views over the Singelgracht.

All amenities are within easy reach. For daily shopping, Wibautstraat and Sarphatistraat are nearby. The Amstel River and Utrechtsestraat offer a wide selection of cafés and restaurants. Popular venues such as De Ysbreeker, Zoldering and De Juwelier are within walking distance, as well as a variety of coffee bars and restaurants. Cultural highlights such as Carré Theatre, the Hortus Botanicus and Artis Zoo are also close by.

Accessibility is excellent, with tram and metro stops (including Weesperplein) within walking distance, offering direct connections throughout the city. The A10 ring road can be reached within approximately 10 minutes by car. Parking is available through the permit system.

Details
- Approx. 101 m² living area (measured in accordance with NEN 2580);
- Ground-floor apartment with basement;
- Located within a protected cityscape;
- UNESCO World Heritage location;
- Abundant natural light and open water views;
- Leasehold property (no ground lease);
- Active and self-managed homeowners’ association (VvE);
- Service charges: €170.01 per month;
- Transfer date in consultation.

This information has been compiled with the utmost care. However, no liability is accepted for any incompleteness, inaccuracies, or otherwise, nor for the consequences thereof. All measurements and surfaces provided are indicative. The buyer has a duty to investigate all matters that are important to them. With regard to this property, the broker acts as the advisor to the seller. We recommend engaging a qualified (NVM) real estate agent to guide you through the purchasing process. Should you have specific requirements regarding the property, we advise you to make these known in good time to your purchasing agent and to (have them) carry out independent research. If you do not engage an expert representative, the law assumes you are sufficiently knowledgeable to oversee all matters of importance. The NVM conditions apply.

Features

Transfer of ownership
Asking Price
€ 995.000
Status
beschikbaar
Acceptance
in overleg
Construction
Kind of house
Benedenwoning
Building type
appartement
Construction period
1850
Energy rating
C
Roof type
zadeldak
Bedrooms
2
Bathrooms
1
Surface Areas And Volume
Living Area
101 m2
Other indoor space
0 m2
Volume in cubic meters
395 m3
Facilities
Tv kabel
Natuurlijke ventilatie
Aan water
Aan rustige weg
In centrum
Aan vaarwater
Baerz & Co Property Brochure

Brochure

Floor Plans

Makelaardij Van Brussel

Europalaan 159
2408 BK Alphen a/d Rijn

johan@makelaardijvanbrussel.nl
+31 172 424 724

www.makelaardijvanbrussel.nl

Information / Viewing request

Johan van Brussel profile image
Johan van Brussel
Real Estate Agent

Buying a Luxury Property in Amsterdam

Amsterdam offers a cosmopolitan lifestyle defined by heritage, connectivity, and discreet luxury. Residents benefit from a robust international community, curated services, and vibrant culture. The city’s enduring appeal lies in its blend of history, sophistication, and progressive spirit.