Ons kantoor is lid van Baerz & Co luxury homes; een Nederlands platform dat exclusieve woningmakelaars met elkaar verbindt. Voor meer informatie over ons landelijke aanbod en dienstverlening kunt u contact opnemen met ons secretariaat.

Dubbel benedenhuis for sale in AMSTERDAM

AMSTERDAM Prins Hendriklaan 14 A - 1075 BB The Netherlands


Eran Hausel profile image
Eran Hausel
Real Estate Agent
+31 6 46 11 94 28
info@heerenmakelaars.nl

Heeren Makelaars
Stadionweg 75
1077 SE Amsterdam
NETHERLANDS
+31 0204702255
www.heerenmakelaars.nl
info@heerenmakelaars.nl

Living area
291m2
Plot size
244m2
Bedrooms
5

Description

Prins Hendriklaan 14 A, 1075 BB AMSTERDAM

On the impressive Prins Hendriklaan, directly adjacent to the Vondelpark, we are delighted to present this exceptionally spacious triple-level ground floor residence of 291 m² with a sunny rear garden and balcony. This unique property offers no fewer than four bedrooms, four bathrooms, an impressive living floor with a luxurious kitchen and soaring ceilings, as well as a souterrain featuring a second living room and kitchen. A stylish and comfortable family home in a prime Oud-Zuid location, where space, elegance, and functionality come together in perfect harmony.

Location & Accessibility
The property is situated on Prins Hendriklaan in Amsterdam Oud-Zuid, directly adjacent to the Vondelpark. In the immediate vicinity you will find the Cornelis Schuytstraat, Van Baerlestraat and P.C. Hooftstraat, offering a wide range of shops, boutiques, and restaurants. For daily groceries, several specialty shops and supermarkets are within walking distance. Schools, childcare facilities, sports clubs, and cultural amenities such as Museumplein are also close by. The location is easily accessible by both public transport and car; tram and bus stops arejust around the corner, and the A10 ring road can be reached within minutes. Parking is arranged through a permit system.

Layout

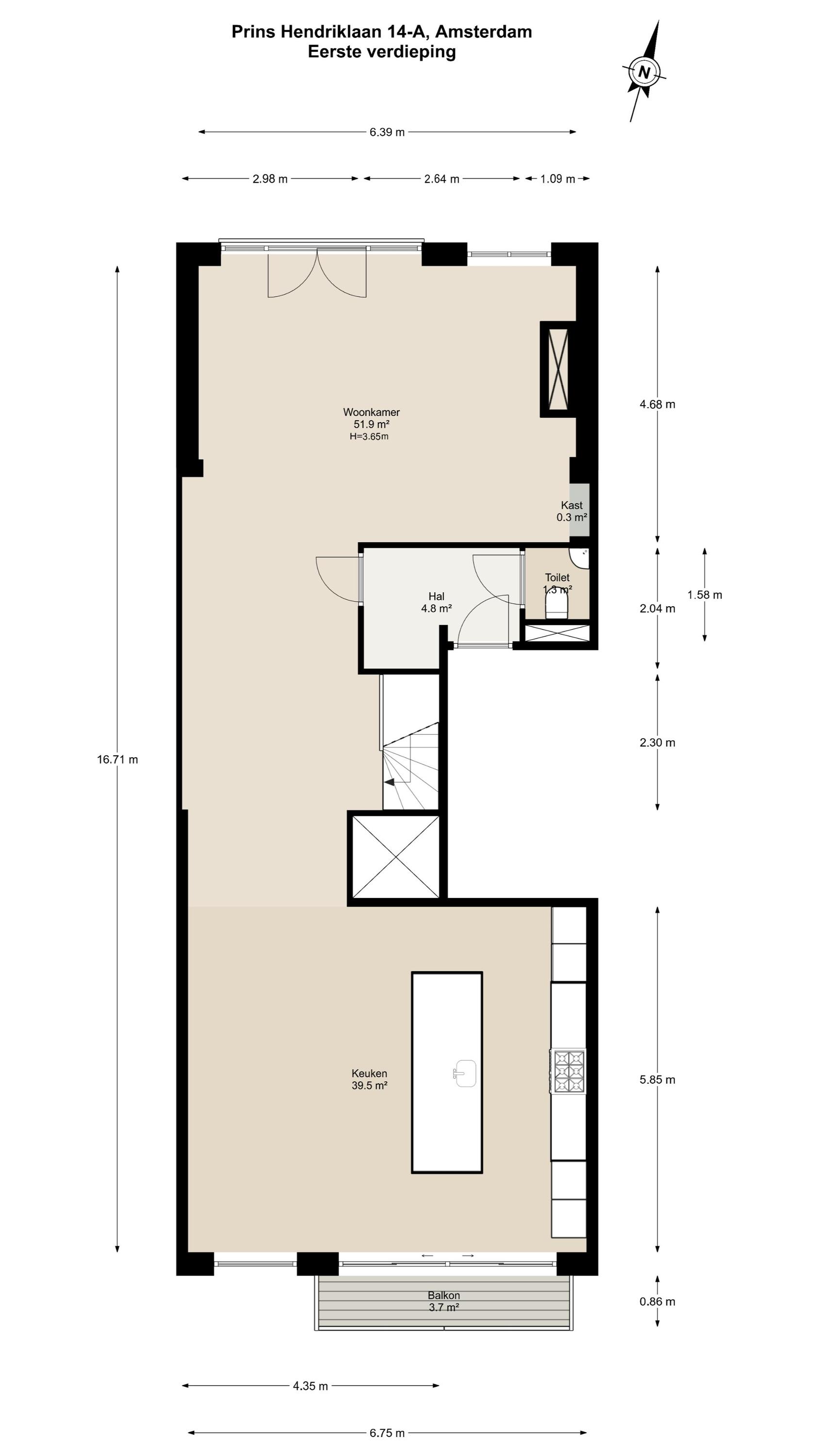
First Floor
Accessible via the elevator or through the private entrance on the first floor, you are welcomed into the impressive main living level. The spacious living room immediately stands out, featuring large windows that flood the space with natural light and create an elegant atmosphere. At the front lies the luxurious open kitchen, a true eye-catcher, complete with a generous cooking island with wine climate cabinet, double sink with Quooker, and top-quality built-in appliances: two ovens, a full-size refrigerator, and a separate freezer. Designed to meet the needs of the culinary enthusiast, this kitchen forms the vibrant heart of the home. From here, you have access to the balcony adorned with original stained-glass windows – the perfect spot for a relaxed breakfast in the morning sun. This floor also offers a cloakroom and a separate guest toilet.

Elevated ground floor
The bel-etage accommodates three comfortable bedrooms and two stylish bathrooms, both fitted with underfloor heating. The master bedroom features a bespoke wardrobe wall and a luxurious en-suite bathroom with bathtub, double vanity unit, walk-in shower, and toilet. The second bathroom is equally modern, with a vanity unit and walk-in shower. A separate toilet is also located on this floor. The presence of a second entrance at this level underscores both the practicality and exclusivity of the residence.

Souterrain
The souterrain surprises with a second living room (which may also serve as a fifth bedroom), a fully equipped second kitchen, and a fourth bedroom. The kitchen includes a four-burner gas hob, integrated extractor, oven, refrigerator, freezer, sink, and dishwasher. This level also offers two bathrooms, a separate toilet, and a spacious storage room. French doors provide direct access to the sunny rear garden. Thanks to the second kitchen, this floor is perfectly suited for long summer evenings and garden gatherings, where cooking and entertaining effortlessly merge with outdoor living.

Key Features
- Residential floor area of 291 m² (measured in accordance with NEN2580 standards)
- Spacious rear garden (approx. 76 m²)
- Front balcony (approx. 4 m²)
- Five bedrooms
- Four bathrooms and six toilets, three of which are separate
- High ceilings
- Underfloor heating in all four bathrooms
- Energy label B
- Homeowners’ association (VvE) in the process of being established
- Situated on freehold land, no leasehold
- Delivery by mutual agreement

This information has been compiled by us with the utmost care. However, no liability is accepted for any incompleteness, inaccuracies, or otherwise, nor for the consequences thereof. All stated measurements and surface areas are indicative. The buyer is responsible for conducting their own investigation into all matters that may be of importance to them. With regard to this property, the broker acts as an advisor to the seller. We strongly recommend engaging a qualified (NVM) real estate agent to guide you through the purchasing process. Should you have specific requirements regarding the property, we advise you to make these known to your purchasing agent in a timely manner and to carry out your own due diligence accordingly. If you choose not to engage a professional representative, you are deemed by law to be sufficiently knowledgeable to oversee all matters of relevance. The NVM conditions apply.

Features

Transfer of ownership
price
€ 4.000.000 k.k.
Status
beschikbaar
Acceptance
in overleg
Construction
Kind of house
Dubbel benedenhuis
Building type
appartement
Construction period
1907
Energy rating
B
Roof type
plat dak
Bedrooms
5
Bathrooms
4
Surface Areas And Volume
Living area
291 m2
Other indoor space
0 m2
Exterior space attached to the building
4 m2
Volume in cubic meters
1221 m3
Plot size
244 m2
facilities
Mechanische ventilatie
Tv kabel
Buitenzonwering
Lift
Aan rustige weg
In woonwijk
Baerz & Co Property Brochure

Brochure

Information / Viewing request

Videos

Video Prins Hendriklaan 14 A

Photos

Floor Plans