Baerz & Co is een landelijk samenwerkingsverband van zorgvuldig geselecteerde boutique luxury makelaars. Samen vormen wij één netwerk, met één gedeeld aanbod. De woningen die u op onze website ziet, zijn afkomstig van alle aangesloten kantoren binnen Baerz & Co. Daardoor is niet ieder object rechtstreeks door ons kantoor in verkoop, maar door een gespecialiseerde collega binnen ons netwerk. Heeft u een woning gevonden die u aanspreekt en wilt u meer informatie? Dan brengen wij u graag persoonlijk in contact met de betreffende verkoopmakelaar, zodat u direct en zorgvuldig wordt begeleid.

AMSTELVEEN
Amsteldijk Noord 105 - 1183 TH
Netherlands

Johan van Brussel profile image
Johan van Brussel
Real Estate Agent
€2,850,000 k.k.
Living Area
309m2
Plot Size
1930m2
Bedrooms
4

Description

Semi detached house Amstelveen offers an exceptional blend of riverside serenity and timeless design. This elegant, semi detached residence spans approximately 309m² and is set on a generous 1,930m² plot, positioned to offer a rare sense of privacy and connection to the Amstel. From the moment of arrival, a sense of calm sets the tone, with thoughtful landscaping and a wrought iron gate guiding you to the garage and home.

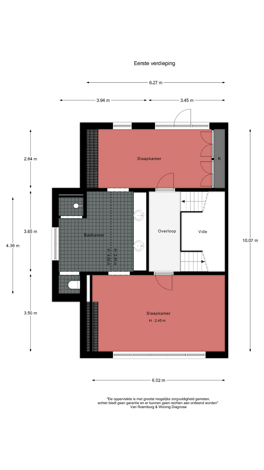
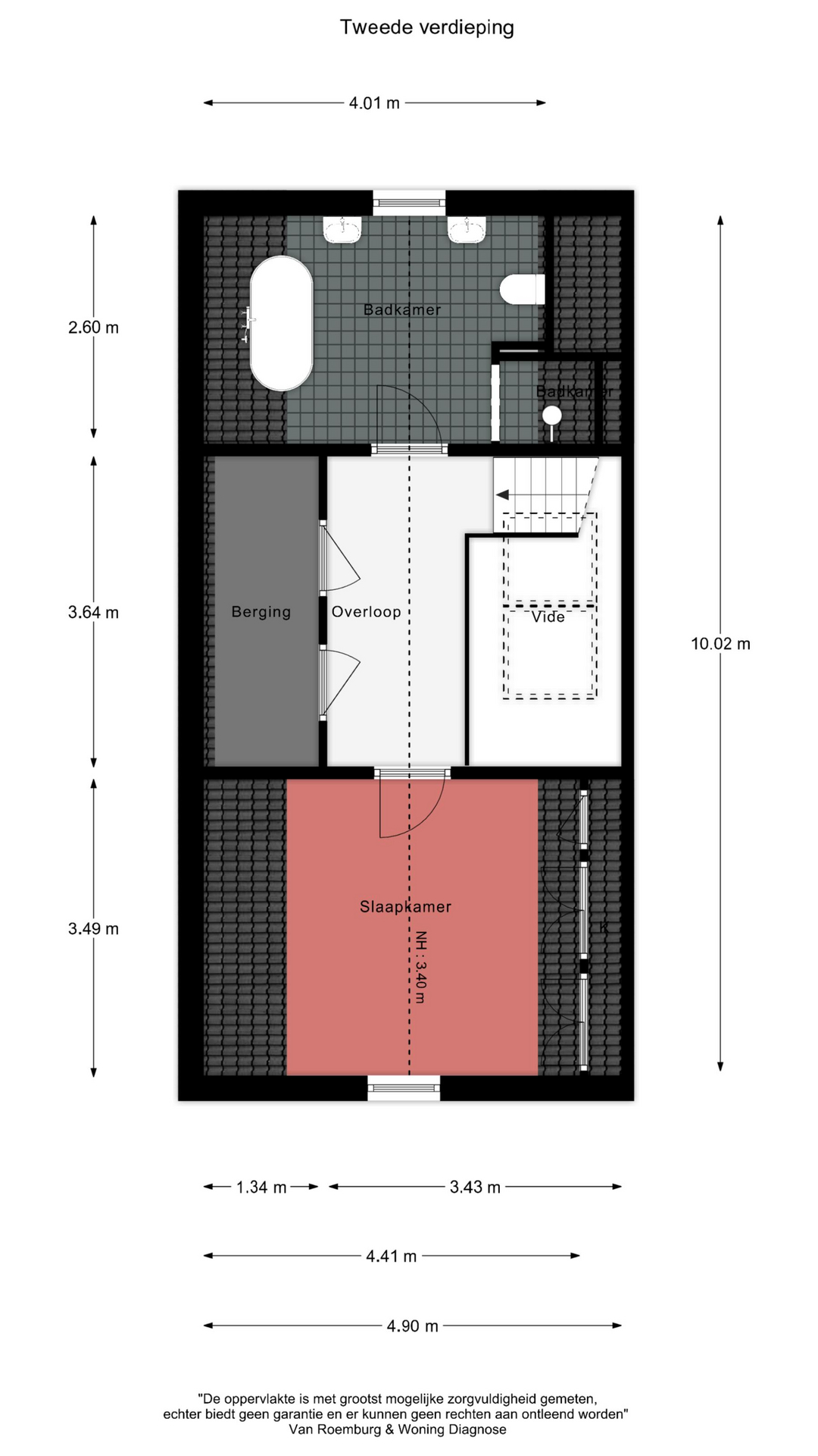
Inside, the house is defined by refined heritage, from stained glass windows originating from the Peace Palace to robust wooden floors reclaimed from historic barracks. Each of the four bedrooms and three bathrooms delivers considered comfort, illuminated by natural light and garden or river views.

Distinctive features include four open fireplaces, handmade oak doors, and a thatched, insulated roof. The semi detached house Amstelveen invites versatile living, with space for family, flexible work arrangements, or hospitality. Outside, the vast garden and terraces offer rare privacy, with direct access to a private mooring on the Amstel. This is a home where tranquility, architectural detail, and access to both city amenities and nature converge with confidence.

Features

Transfer of ownership
Asking Price
€ 2.850.000 k.k.
Status
beschikbaar
Acceptance
in overleg
Construction
Kind of house
Herenhuis
Building type
twee onder een kapwoning
Construction period
1935
Roof type
zadeldak
Bedrooms
4
Bathrooms
3
Surface Areas And Volume
Living Area
309 m2
Other indoor space
0 m2
Exterior space attached to the buildinge
20 m2
External storage space
22 m2
Volume in cubic meters
965 m3
Plot Size
1930 m2
Baerz & Co Property Brochure

Brochure

Videos

Makelaardij Van Brussel

Europalaan 159
2408 BK Alphen a/d Rijn

johan@makelaardijvanbrussel.nl
+31 172424724

www.makelaardijvanbrussel.nl

Information / Viewing request

Johan van Brussel profile image
Johan van Brussel
Real Estate Agent

Buying a Luxury Property in Amstelveen

Amstelveen offers refined residences, a cosmopolitan atmosphere, and exceptional connectivity. The blend of green areas, international amenities, and community sophistication continues to captivate global buyers and families seeking both privacy and vibrant urban connections.